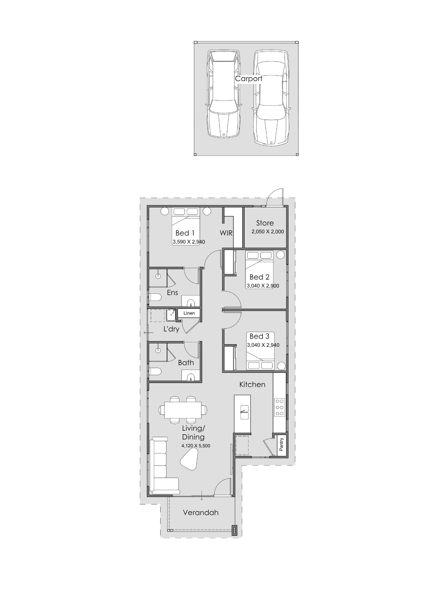
3 bedroom, 2 bathroom family home. Enter from the verandah to an open plan living and dining area straight off the kitchen. Both minor bedrooms have built in robes for storage and are located next to the main bathroom for convinence. The master bedroom features an ensuite and walk in robe.

Total package price
$695,000

Floorplan

Designed around family living with open plan living kitchen and dining, the home has space for everyone to enjoy.

3 Bedrooms

2 Bathrooms

2 Car Spaces

Lot Size 304.59m²

2025/10/C2-1.jpg
2025/10/C2-1.jpg

Floorplan for

Treendale

Lot 11 (7) Andromeda Road, Australind

3 beds
2 baths
2 cars
304.59m²

Features & inclusions

3.52kW Solar Power System

Enjoy sustainable living and reduced energy costs with a high-performance solar panel system that powers your home naturally.

Westinghouse Kitchen Appliances 

Cook and entertain using stylish, reliable appliances from the trusted Westinghouse brand.

Split System Air-Conditioning to Living/Dining 

Experience year-round comfort with efficient climate control perfectly positioned for your main living areas.

Full Wall Painting & High Ceilings (circa 30c) 

Step into bright, open spaces enhanced by professionally finished full-height walls and elevated ceilings that create a true sense of luxury and light.

Check out the block

Treendale

Lot 11 (7) Andromeda Road, Australind

Enquire about this package

Have questions? Fill in the form and we’ll get back to you.

Fields marked with * are required.

"*" indicates required fields

This field is for validation purposes and should be left unchanged.
2025/10/S41548-LOT-10-ANDROMEDA-RD-TREENDALE-Exteriors-Streetscape-min-scaled.jpg

Estate

Treendale

Welcome to Treendale – where modern living meets the relaxed South West lifestyle.

Fill in the form below to
Get access

Fields marked with * are required.

"*" indicates required fields