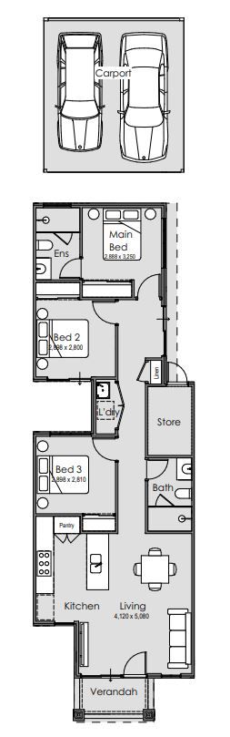
3 bedroom, 2 bathroom home with master bedroom and ensuite located at the back of the home. Kitchen and living quarters at the front of the home with a verandah.

Total package price
$609,990

Floorplan

Designed around family living with open plan living kitchen and dining, the home has space for everyone to enjoy.

3 Bedrooms

2 Bathrooms

2 Car Spaces

Lot Size 180m²

2025/10/f8051ad4e8aeb8e8762829441fd6fb6a-1.jpeg
2025/10/f8051ad4e8aeb8e8762829441fd6fb6a-1.jpeg

Floorplan for

Wellard Green, Wellard

Lot 35 Bertram Road, Wellard

3 beds
2 baths
2 cars
180m²

Features & inclusions

3.52kW Solar Power System

Enjoy sustainable living and reduced energy costs with a high-performance solar panel system that powers your home naturally.

Westinghouse Kitchen Appliances 

Cook and entertain using stylish, reliable appliances from the trusted Westinghouse brand.

Split System Air-Conditioning to Living/Dining 

Experience year-round comfort with efficient climate control perfectly positioned for your main living areas.

Full Wall Painting & High Ceilings (circa 30c) 

Step into bright, open spaces enhanced by professionally finished full-height walls and elevated ceilings that create a true sense of luxury and light.

Check out the block

Wellard Green

Lot 35 Bertram Road, Wellard

Enquire about this package

Have questions? Fill in the form and we’ll get back to you.

Fields marked with * are required.

"*" indicates required fields

This field is for validation purposes and should be left unchanged.
Modern House at Wellard Green Estate

Estate

Wellard Green

Welcome to Wellard Green – a boutique, private estate carefully designed for those who want it all – convenience, connection, and a sense of escape.

Fill in the form below to
Get access

Fields marked with * are required.

"*" indicates required fields