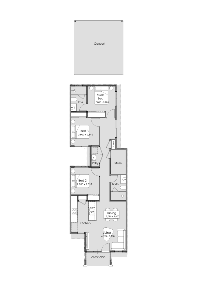
This home greets you with energy from the moment you step inside. The kitchen, living, and dining areas sit confidently at the front, creating a bright, welcoming space that brings people together with ease. It’s a hub designed for connection—morning coffee, shared dinners, and everyday moments that move life forward.

As you make your way through the home, the pace softens. The three bedrooms sit at the rear, offering a quiet retreat away from the rhythm of the day. The two minor bedrooms are positioned close to the main bathroom, keeping routines simple and everything within effortless reach.

Tucked at the very back, the master bedroom becomes your private sanctuary. With a built-in robe and a well-appointed ensuite, it delivers comfort without complication—just calm, clarity, and the space to breathe.

Total package price
$641,990

Floorplan

Designed around family living with open plan living kitchen and dining, the home has space for everyone to enjoy.

3 Bedrooms

2 Bathrooms

2 Car Spaces

Lot Size 180m²

2025/12/0a755fc9ea568caffd00d39691c03b88.png
2025/12/0a755fc9ea568caffd00d39691c03b88.png

Floorplan for

The Glades, Byford

Lot 5102 Humming Street, Byford

3 beds
2 baths
2 cars
180m²

Features & inclusions

Check out the block

The Glades, Byford

Lot 5102 Humming Street, Byford

Enquire about this package

Have questions? Fill in the form and we’ll get back to you.

Fields marked with * are required.

"*" indicates required fields

This field is for validation purposes and should be left unchanged.
Bullsbrook Estate

Estate

Bullsbrook

Welcome to Bullsbrook – a growing community where country charm meets modern convenience

Fill in the form below to
Get access

Fields marked with * are required.

"*" indicates required fields