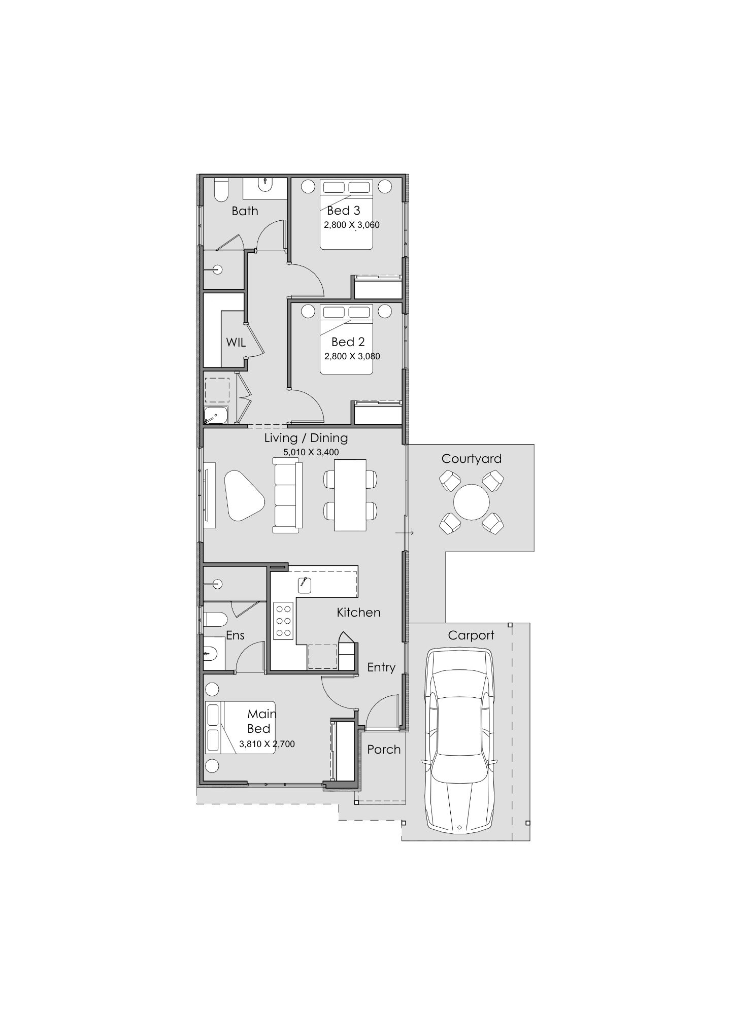
3 bedroom, 2 bathroom home perfect for first home buyers. The master suite is at the front of the home and has a built in robe and ensuite bathroom. The kitchen leads into an open plan living and dining area perfect for entertaining friends and family. At the rear of the home are the two minor bedrooms which are located next to the main bathroom for convenience.

Total package price
$522,990

Floorplan

Designed around family living with open plan living kitchen and dining, the home has space for everyone to enjoy.

3 Bedrooms

2 Bathrooms

1 Car Spaces

Lot Size 171m²

2025/10/D2-1.jpg
2025/10/D2-1.jpg

Floorplan for

Sienna Wood, Hilbert

Lot 514 Whitsunday Drive, Haynes

3 beds
2 baths
1 cars
171m²

Features & inclusions

3.52kW Solar Power System

Enjoy sustainable living and reduced energy costs with a high-performance solar panel system that powers your home naturally.

Westinghouse Kitchen Appliances

Cook and entertain using stylish, reliable appliances from the trusted Westinghouse brand.

Split System Air-Conditioning to Living/Dining

Experience year-round comfort with efficient climate control perfectly positioned for your main living areas.

Full Wall Painting & High Ceilings (circa 30c)

Step into bright, open spaces enhanced by professionally finished full-height walls and elevated ceilings that create a true sense of luxury and light.

Check out the block

Sienna Wood

Lot 514 Whitsunday Drive, Haynes

Enquire about this package

Have questions? Fill in the form and we’ll get back to you.

Fields marked with * are required.

"*" indicates required fields

This field is for validation purposes and should be left unchanged.
2025/10/031.jpg

Estate

Sienna Wood

Nestled along the Wungong River and regional parks, Sienna Wood is a picturesque community that combines natural beauty with modern amenities.

Fill in the form below to
Get access

Fields marked with * are required.

"*" indicates required fields